Floorplan
Yes!Delft Incubators
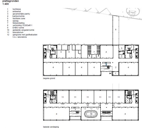
Begane grond en eerste verdieping
Willekeurige plattegrond van google
Willekeurige kamer plattegrond
Aanmelder Event
Bruce Wayneinfo@aanmelder.nl
Bruce Wayneinfo@aanmelder.nlhttps://www.aanmelder.nl/94979
2017-06-19
2017-06-19
OfflineEventAttendanceMode
EventScheduled
Aanmelder EventAanmelder Event0.00EUROnlineOnly2019-01-01T00:00:00Z
Nieuwe aanmelder kantoorNieuwe aanmelder kantoorPhoenixstraat 28 2611 Al Netherlands